Hoppa till innehåll

Telefonplan, Viridum

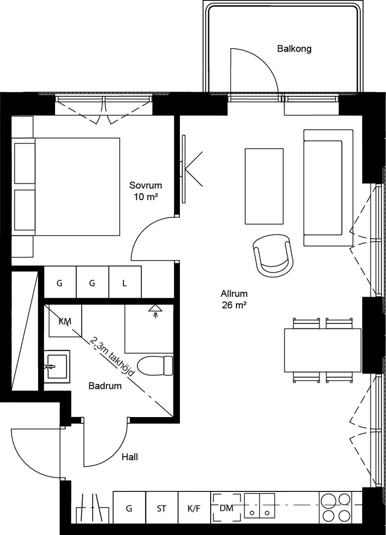
2 rok, 45 m2

Unik tvåa med tre meter i takhöjd och milsvid utsikt över Stockholm!

Lägenhetens inredning

Tre meter i takhöjd skapar en känsla av ljus och rymd genom hela bostaden. Bostäderna i Viridum präglas av en harmonisk mix av ljusa färger och naturnära material. Samtliga väggar målas i en ljus och varm, gråbeige nyans. Rumsgolven får en svagt vitpigmenterad ekparkett och hallen får samma sandstensmönstrade granitkeramik som våtrummen.

Kök

Köket i Viridum är utformat för att vara en harmonisk kombination av design och funktionalitet. Den ljusa ekparketten möter skåpsluckor i en varm, sandig ton med stilrena och diskreta handtag som förstärker den tidlösa känslan. Bänkskivan och stänkskyddet är i ett hållbart laminat med en kalkstensinspirerad finish som knyter samman kökets naturliga färgpalett och skapar en rofylld atmosfär.

Visa mer

I Viridum är köket mer än en plats för matlagning – det är en central del av ditt hem. Den öppna planlösningen mot vardagsrummet gör köket till en social och välkomnande plats, perfekt för allt från vardagsmiddag till livliga middagsbjudningar.

Badrum

I Viridum har badrummen designats för att förena en känsla av lyx med praktisk funktion. De sandtonade kakel- och klinker - plattorna skapar en harmonisk bas, medan duschväggarna i klarglas tillför en modern och luftig känsla. Tvättställskommoder i ton med kaklet har diskreta grepp och generösa lådor som ger smart förvaring för vardagens behov.

I de större lägenheterna finns dessutom separata WC-utrymmen eller extra badrum.

Här har vi tänkt på detaljerna som gör skillnad. Med praktiska lösningar som exempelvis en bänk - skiva och förvaringsskåp ovanför tvättmaskin och torktumlare – eller en kombimaskin i mindre lägenheter – är badrummet lika funktionellt som vackert. Det är ett rum där du kan börja och avsluta dagen med en känsla av ro och kvalitet.

Dölj
Pris
3 545 000 kr
Avgift
3 329 kr
Objektnummer
5-1805
Våning
8
Antal rum
2
Boarea
45 m2
Upplåtelseform
Bostadsrätt
Boendeform
Flerbostadshus
Balkong
Ja
Hiss
Ja
Miljömärkning
BREEAM-SE Excellent
Address
Tellusborgsvägen 87, 12629 Hägersten

Dokument

Planritning

Välkommen med din intresseanmälan

En intresseanmälan innebär att du anmäler intresse för en specifik lägenhet och att du kommer att bli kontaktad av en mäklare från Notar

(*)” anger obligatoriska fält

Detta fält är dolt när formuläret visas