Hoppa till innehåll

Telefonplan, Viridum

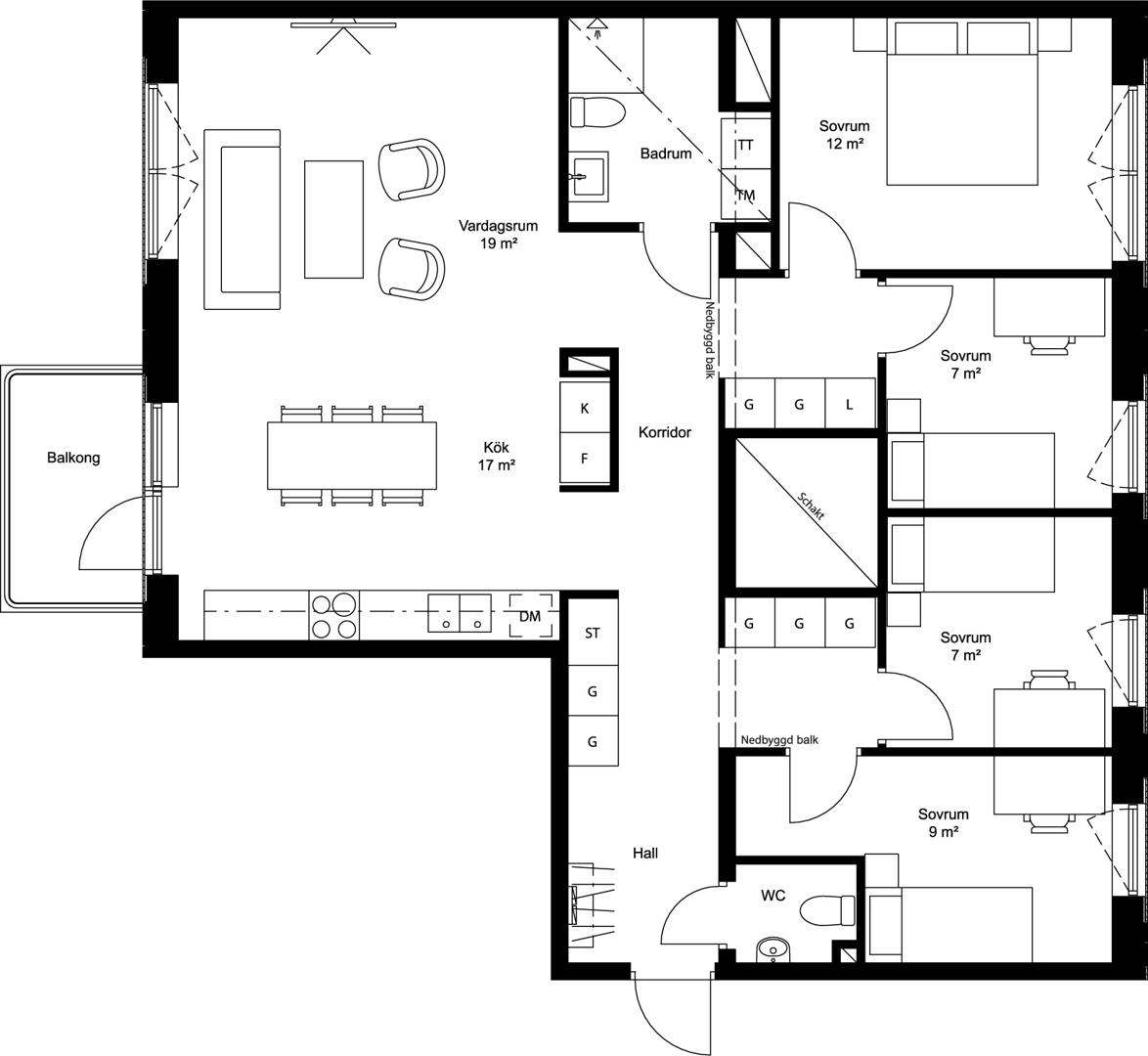
5 rok, 104 m2

Genomgående femma med solig balkong

Otroligt välplanerad femma med gott om smarta förvaringslösningar. Lägenheten har dubbla WC samt en stor och solig balkong i västerläge.

Lägenhetens inredning

Bostäderna i Viridum präglas av en harmonisk mix av ljusa färger och naturnära material. Samtliga väggar målas i en ljus och varm, gråbeige nyans. Rumsgolven får en svagt vitpigmenterad ekparkett och hallen får samma sandstensmönstrade granitkeramik som våtrummen.

Visa mer

Kök

Köket i Viridum är utformat för att vara en harmonisk kombination av design och funktionalitet. Den ljusa ekparketten möter skåpsluckor i en varm, sandig ton med stilrena och diskreta handtag som förstärker den tidlösa känslan. Bänkskivan och stänkskyddet är i ett hållbart laminat med en kalkstensinspirerad finish som knyter samman kökets naturliga färgpalett och skapar en rofylld atmosfär.

I Viridum är köket mer än en plats för matlagning – det är en central del av ditt hem. Den öppna planlösningen mot vardagsrummet gör köket till en social och välkomnande plats, perfekt för allt från vardagsmiddag till livliga middagsbjudningar.

Badrum

I Viridum har badrummen designats för att förena en känsla av lyx med praktisk funktion. De sandtonade kakel- och klinker - plattorna skapar en harmonisk bas, medan duschväggarna i klarglas tillför en modern och luftig känsla. Tvättställskommoder i ton med kaklet har diskreta grepp och generösa lådor som ger smart förvaring för vardagens behov.

I de större lägenheterna finns dessutom separata WC-utrymmen eller extra badrum.

Här har vi tänkt på detaljerna som gör skillnad. Med praktiska lösningar som exempelvis en bänk - skiva och förvaringsskåp ovanför tvättmaskin och torktumlare – eller en kombimaskin i mindre lägenheter – är badrummet lika funktionellt som vackert. Det är ett rum där du kan börja och avsluta dagen med en känsla av ro och kvalitet.

Dölj
Pris
7 695 000 kr
Avgift
7 695 kr
Objektnummer
2-1102
Våning
1
Antal rum
5
Boarea
104 m2
Upplåtelseform
Bostadsrätt
Boendeform
Flerbostadshus
Balkong
Ja
Hiss
Ja
Miljömärkning
BREEAM-SE Excellent
Address
Tellusborgsvägen 87, 12629 Hägersten

Dokument

Planritning