Hoppa till innehåll

Centrala Tyresö, Birdie

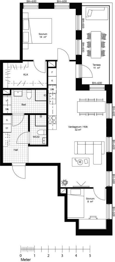
3 rok, 78 m2

Högst upp med takterrass

Här bor du högst upp i huset med fönster i två väderstreck och utsikt mot golfbanan. Lägenheten har kök och vardagsrum med öppen planlösning och utgång till takterrass i fint österläge. Master bedroom har ett avskilt läge och intilliggande rymlig klädkammare. Ett mindre sovrum/arbetsrum ligger i anslutning till vardagsrummet. Lägenheten har dubbla badrum varav det ena är utrustat med tvättmaskin och tumlare.

Lägenhetens inredning

Inredningen går i en ljus färgskala där ton-i-ton-känslan är en viktig ingrediens. Allt noga utvalt för att kännas både aktuellt och hållbart över tid. Samtliga väggar målas i en ljus och varm, gråbeige nyans. Rumsgolven får en svagt vitpigmenterad ekparkett och hallen får samma sandstensmönstrade granitkeramik som våtrummen.

Visa mer

Kök

Köket får släta, sandfärgade kökssnickerier från Marbodal. Överskåpens luckor förses med pushfunktion, underskåpen mjukstängande fullutdragslådor med diskreta handtag i en gråbeige nyans. Bänkskiva och stänkskydd i laminat, Delaware Stone, från Marbodal Under överskåpen finns infällda spotlights.
Köket utrustas med induktionshäll, inbyggnadsugn under bänkskiva, mikro i väggskåp, integrerad diskmaskin samt kyl och frys alt. för vissa lägenheter kombinerad kyl/frys.
Samtliga vitvaror är i rostfritt utförande från Siemens
Vissa större lägenheter får köksö.

Badrum

Badrummets väggar och golv kläs i en sandstensmönstrad, gråbeige granitkeramik som tillsammans med beige tvättställskommod och duschdörrar i glas ger en lugn och sober känsla. Badrummen utrustas med tvättmaskin och tumlare med ovanliggande bänkskiva och väggmonterade skåp i samma nyans som kommoden. Mindre lägenheter får en kombinationsmaskin med ovanliggande bänkskiva. Badrum med tvättmöjlighet har infällda, dimningsbara takspotlights medan eventuell extra WC/dusch har takarmatur.

Dölj
Pris
4 750 000 kr
Avgift
5 340 kr
Objektnummer
2-1403
Våning
5
Antal rum
3
Boarea
78 m2
Upplåtelseform
Bostadsrätt
Boendeform
Flerbostadshus
Terrass
Ja
Hiss
Ja
Förråd
Ja
Miljömärkning
BREEAM-SE Excellent

Planritning

HUSEN

Hem med omtanke både inne och ute

I Birdie kommer det att finnas en stor variation av lägenheter som möter olika målgrupper. Här hittar du allt från effektiva ettor till generösa femmor. Flera av de större lägenheterna har valbara väggar för den som köper i tidigt skede. Samtliga lägenheter har uteplats, balkong eller takterrass. Många lägenheter har fönster i flera väderstreck och här finns även möjlighet till vida utblickar.
Stor omtanke läggs kring entréer och den exteriöra miljön där fruktlundar, grönska och sociala ytor får ta plats. Allt för att du ska känna dig hemma både inne och ute.

OMRÅDET

Tyresö centrum på gångavstånd

En knapp kilometer från Birdie finns Tyresö Centrum med ett brett utbud av butiker, restauranger, caféer och allmän service. I närområdet finns även ett flertal skolor och förskolor samt stort antal sport och fritidsaktiviteter. Ett flertal busslinjer trafikerar området. Att resa till Gullmarsplan tar ca 15 minuter. Under rusningstrafik och nattrafik går bussar även till centrala Stockholm.

TIDSLINJE

Resan mot ditt nya hem

Följ vår resa från idé till verklighet. Se var i processen projektet befinner sig idag och hur vi närmar oss inflyttningsklara hem.

  1. 1
    Planeringsfas

    Bostadsprojektet planeras utifrån dess förutsättningar och läge. Allt för att skapa så bra bostäder som möjligt.

  2. 2
    Säljstartat

    De första lägenheterna släpps till försäljning. Du får tillgång till priser, försäljningsmaterial och materialval.

  3. 3
    Produktionsstartat

    Vi sätter spaden i marken och byggnationen av bostäderna påbörjas.

  4. 4
    Inflyttningsklart

    Bostäderna är färdigställda och besiktigade. Nu är det dags att flytta in.

  5. 5
    Slutsålt

    Alla grannar har nu hittat hem. Samtliga bostäder i projektet är sålda.

  6. 6
    Färdigställt

    Nu är hela bostadsprojektet klart och inflyttat. Vi hoppas alla ska trivas i sin nya boendemiljö.

Anmäl intresse för lägenhet

Genom att anmäla ditt intresse får du löpande information om våra bostäder i projektet.

(*)” anger obligatoriska fält

Detta fält är dolt när formuläret visas